SERVICIOS DE MODELADO BIM

CONSTRUIMOS EL FUTURO DIGITAL DE TUS PROYECTOS

Ofrecemos soluciones de modelado BIM (Building Information Modeling) eficientes y colaborativas que te facilitarán la toma de decisiones en cada etapa del proyecto; lo que te permitirá reducir riesgos y errores, optimizar los recursos y procesos empleados durante la construcción y mejorar la comunicación entre los involucrados.
proyecto

Modelado BIM Arquitectura

La metodología BIM optimiza la gestión de proyectos, promueve una mayor coordinación entre equipos, diminuye costos y permite detectar conflictos antes de la construcción.

- Mejor comunicación con el cliente mediante visualizaciones 3D - Optimiza el control y gestión del diseño - Creación de elementos BIM con nivel de detalle LOD 100 a 500

Modelado BIM Estructura

Integrar el modelo estructural al proyecto BIM, brinda una representación precisa y detallada de cada elemento constructivo.

- Mejora la colaboración y coordinación - Detección temprana de interferencias - Proporciona una comprensión más completa del diseño - Cantidad más precisa de los componentes estructurales

Captura de pantalla 2025-05-19 16174
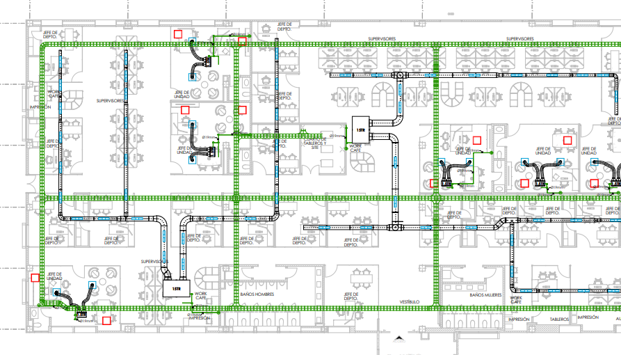
Modelado as built de ingenierías

Modelado BIM Ingenierías MEP

La representación de la infraestructura de ingenierías mejora la coordinación y precisión del proyecto.

- Coordinación mejorada entre diferentes especialidades - Gestión de recursos - Se pueden detectar y prevenir riesgos potenciales o problemas de intersección antes de la construcción

Documentación

Podemos generar los planos, cortes, alzados, detalles constructivos, isométricos, listados y esquemas directamente desde el modelo.

- Registro fiel de lo construido - Cambios actualizados directamente desde el modelo - Aporta información clave para la planificación de renovaciones, actualizaciones tecnológicas o evaluaciones estructurales a largo plazo

Captura de pantalla 2025-05-06 165145